Lima Convention Centre – LCC


Introduction
The project and construction of the Lima Convention Centre (LCC) is contextualized by the agreement between the Peruvian State and the World Bank and the International Monetary Fund to hold in Lima the 2015 Board of Governors. The Peruvian State saw this event as an opportunity to extend and improve the congressional infrastructure available in the capital of Peru.
Location
The new building is strategically located in the Cultural Centre of the Nation (CCN), next to the National Museum, the Ministry of Education, the new headquarters of the National Bank or the Huaca San Borja. on the corner of Av. Archaeology Av. Del Comercio, San Borja district, Lima, Peru.
Its strategic location allows the LCC is also positioned as an urban reference, thanks to its ability to “make city.”
Concept
The LCC was designed to satisfy four strategic objectives: being a cultural and economic motor for the country, representing a meeting place at the heart of the city enrooted in the collective Peruvian culture, turning into a unique, flexible and technologically advanced architectonic landmark and finally, triggering the urban transformation of the CNN and its surroundings.
Spaces
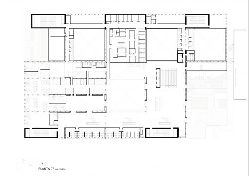
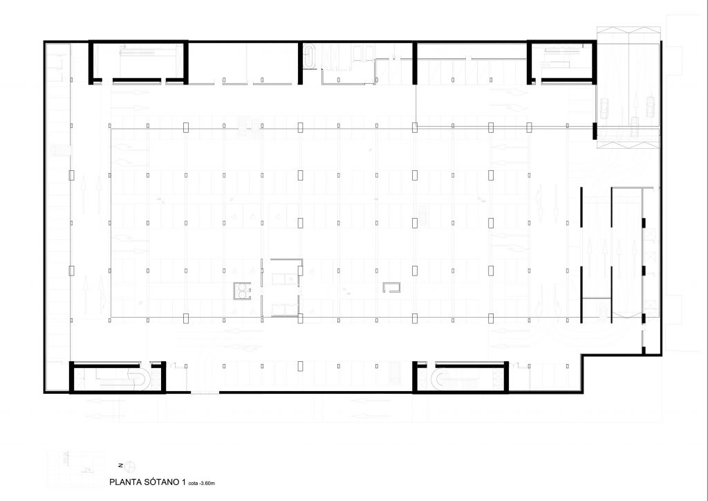
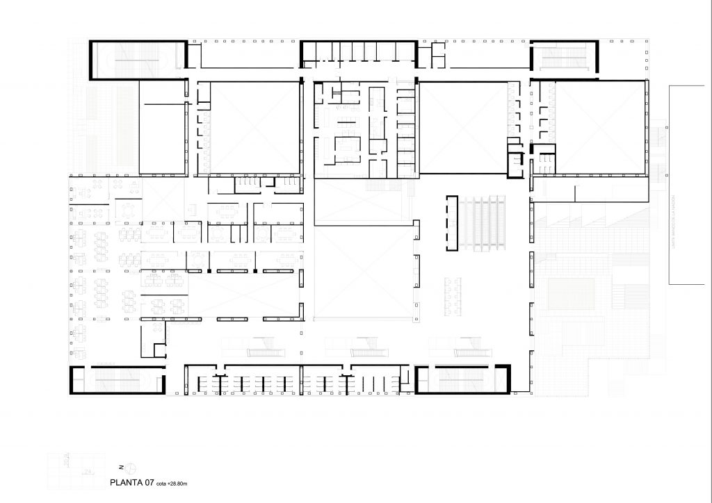
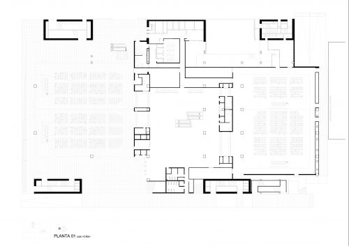
The near 15,000 m2 of net area correspond to the 18 multipurpose convention halls, their sizes and proportions varying from 3,500 m2 to 100 m2, which allow for up to 10,000 people to attend simultaneous events. The rest of the programme is completed by four underground car-park floors as well as several uses above ground that complement the conference rooms. These would include areas for translation and general management of the centre, stockrooms and toilets, workshops and areas for maintenance and material distribution, kitchens and dining areas, exhibition halls, cafeterias and relaxation areas. This all generates a total built up area of 86,000 m2.
Both the overall implementation and the provision of access and program allow the Lima community can appropriate a certain freedom of spaces in almost all plants, with special mention to the ground floor. Thus the project contributes to strengthen and unify the urban space of CCN, reactivating the current Commerce Street -connection natural with metro- and reinforcing the pedestrian and civic character of this route, which will be named in the near future as Boulevard de la Culture.
Temporal physical Strata

The general volume is organized into three time-physical strata clearly differentiated, symbolically related to the country’s history, time and memory:
The present is represented by the great internal void – Nation Rooms – which harbours the two transformable rooms of about 1,800 m2, one of which can open up entirely to the city by clearing its perimeter of the acoustics panels that make it up, generating a sheltered urban plaza over 2,500 m2.
The past, the heart of the project, is an outdoor area inspired by a great huaca – Lima Lounge – generated naturally by the disposition and the difference in height of the convention halls.
The future is a great vitreous volume – International Room of Nations. It’s a highly technical conventions facility which invites the rest of the world to come to Peru for its entrepreneurial capacity and its promising future.
Last, the heart of the project, an outer space inspired by a great huaca of Lima -living naturally generated by the arrangement and height differences of convention halls.
Operational and functional flexibility is a key in the integral design of LCC and is aimed at maximizing the economic and social success of the project. Almost all rooms can be extended or reduced thanks to acoustic panels that limit, allowing different spatial configurations.
Internal Circulations
The arrangement of the rooms reflects both ratios derived from the acoustic and visual as to the relationship they maintain with the spaces of distribution and audience with the provision of these with terraces that overlook the city conditions. 1/3 ratio between the net area of conference rooms and public circulation space excluding the terracing ensure proper operation of the building. The generous ratio of the area of each room and the amount of audience m² useful -1.5 per person- ensures more than enough to put in each room both seats as the usual coffee-break areas and recreation.
Internal flow patterns have been structured as two independent systems, according to the different requirements regarding access and evacuation speeds. A central set of escalators and lifts offer quick access to all levels. On the other hand, staircases – totally independent from the escalators system – go through the different interior and exterior areas of the building, allowing for the contemplation of Lima from varying heights from all the building’s façades.
The operative and functional flexibility are keys to the comprehensive design of the LCC and are orientated towards maximizing the economic and social success of the project. Nearly all rooms can be extended or reduced thanks to the acoustic panels that limit them, making it possible to have several spatial distributions.
Structure and materials
Both the construction methods and the materials used on the different elevations of the building – glass, GRC panels and metal-sheet – have been conceived to blend in with their immediate urban surroundings, establishing a link in terms of appearance with the buildings that make up the CCN.
Technically, the inexcusable condition that the 5,400 m² large room with capacity for 3,500 people remain free -together pillars inconvenience of using seismic structures apeadas-
makes the conceptual and structural proposal in a challenge, since it requires to place the large room on the top level. Place a covered volume the size of a football field to over 30 meters high is a challenge not only to the structural approach, but also for the resolution of internal mobility -access and evacuación- the building.
This condition in turn generates a 9,000 m2 flat roof which will literally be a fifth façade for the people in the National Bank – over 100 m tall – as well as for whoever might be in the high-rise buildings that might be erected in the future. This façade condition of the roof, along with the will to simplify the routes of the HVAC ducts, have determined the position of the HVAC machinery on the East elevation. It is left to the building envelope to solve its image.













































