Alexandra Road State
Introduction
The Metropolitan Borough of Camden was formed in 1964, consisting of the districts of Hampstead, Holborn and St. Pancras, respectively intellectuals, rich and radicals. It was the richest London 3rd district cadastral terms, a quality to which add an ambitious political youth group which main aim was “more houses from start to finish” and under that badge were made some of the most exciting social housing and distinctive modern times. These projections include driven by the Department of Municipal Architecture, headed by architect Sydney Cook in Camden, the Alexandra and Ainsworth Estate calls, best known as Alexandra Road or familiarly by Rowley Way.
The City Council found in Cook and the team that recruited people with vision and ideological unity that matched his ambitions. The architect rejected the procedure fashionable at the time, the high-rise construction cheapened prices, standardized plans and multi-storey blocks situated in very popular open landscapes at that time. The architect Neave Brown, Cook found an ally.
The basic design of the complex was determined in 1968, but met with opposition from the Camden Planning Department, who believed that a low-rise development may not reach the required population density, political report stipulated 136 persons per hectare, Planning Brown called 150 and then promised 210, higher than that achieved by most of the high-rise projects. The project was finally approved in 1969, the license granted in 1970 and construction began in 1972 The first residents settled in 1978, although overall it was completed in 1979 was the first Alexandra Estate housing complex which won the postwar protection grade II in 1993 at that time it was described as “one of the most prominent groups of buildings produced in England since World war exceptional architectural interest.” The property was declared a Conservation Area in 1994.
Location
The property consists of three blocks east to west in parallel, and occupies a site in a crescent shape. Rowley Way has its main entrance on the west, in Abbey Road NW8, the famous Abbey Road immortalized by the Beatles in Camden, London, England.
The complex elongated, crescent-shaped, bounded on the south by Boundary Road and existing homes, Loudoun Road to the east and the railroad tracks to the north. Inside were generated two pedestrian streets, the main Rowley Way, formerly Alexandra Road, and a smaller, Ainsworth Road.
Prior to the project, Alexandra Road was an area where decaying Victorian mansions were located, called to be demolished. Residents previously rejected another commercial project proposed three 14-storey blocks. The bill was withdrawn and the Council acquired 13.5ha for social housing in 1966.
Concept
“… Low construction, to fill the site with geometric definitions of open space, to integrate. And to return to the traditional quality housing thing continuous, anonymous, cellular, repetitive background, which has always been his virtue… “(Neave Brown)
In the design of these projects, the architects of Camden seeking an alternative to high rise blocks that most local authorities were building. The aim was not only to meet the pragmatic needs, but also to establish a new type based on a radical reinterpretation of traditional English urbanism, around the street architecture. Brown believed that even in central urban areas, every household should have its own opening to the front directly to the network of roads and streets that make up a city gate, and that every home should have its own private outdoor area open to the sky in the form of a roof garden or terrace. These ideas were incorporated by Brown surprisingly in Alexandra Road. The street not only allowed a place for social interaction but also provided to each housing a direct connection to the main street.
For non-architects, this was a call to return to traditional values of terraced housing, homes not necessarily for the working class, in which every house has a door to the street and their own view of the sky. Thought not so much as a place to house many people, but as an independent entity, a city in itself that covers the basic needs of its people and conveys the idea of community sharing common spaces and ideal space. But the mega own Brutalist style building with concrete, serial forceful and dramatic structure and geometry departs somewhat from the human scale. Presumably, the relative scarcity of windows on the north façade responds to an attempt to minimize the impact of the railroad, but also greatly increases its monumental aspect. The best views of this complex are on the west side, as this part crosses the railroad tracks. It is noteworthy that although the windows and access to houses look to the pedestrian streets has been checked visually and physically the distance between the public part and private spaces. The combination of a subtle change in the paving and placement of trees serve both to define a differentiation path walkers, physically moving away from the entrances to the blocks.
The flat roofs of the stepped elevation in the highest block offer private outdoor areas for all households. The balconies of blocks A and B have thick concrete railings with glass panels on the bottom and glass windows from floor to ceiling with thick dark wooden frames in departments look to Rowley Way.
Spaces
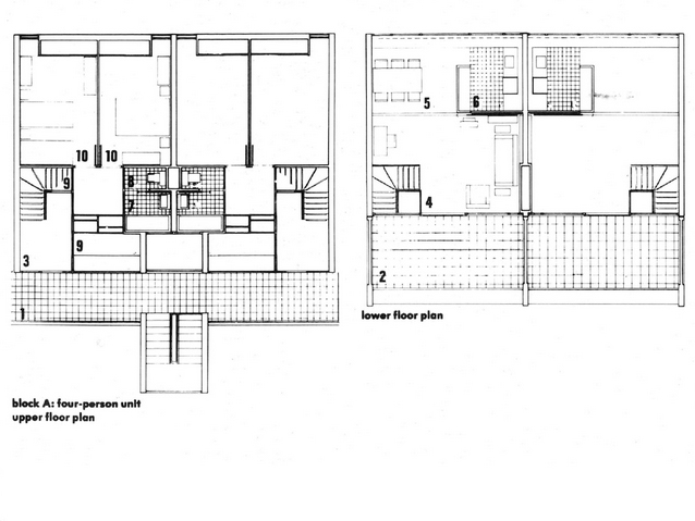
Alexandra Road is essentially a three blocks complex that run parallel to each other, next to a major rail lines on the outskirts of London. The blocks are separated by two parallel pedestrian streets, the main 350m long.
Overview
All homes have their own outdoor space, the ground floor with a slightly elevated garden and separated from the public street by a moat. From the first floor begins phasing that allows light to enter and view all homes and reduce the massiveness of the set.
The format of open floors with views and sliding screens bedrooms on the lower floors with spacious living areas and kitchen above and a private, open to the sky for each dwelling space, be it home, duplex or apartment is the feature of these homes. They are arranged so that they are accessible from the pedestrian street via stairs.
The units range from one person designed, with two rooms, until the scheduled six with four rooms. In all the floors with two bedrooms these are in ground floor and the living room and kitchen directly above. Each room has a separate balcony outside the living room by sliding glass doors from floor to ceiling.
High Block – A
The largest of the blocks, with 8 floors high, exposed its rear facade facing the West Coast Main Line and is built like “ziggurat” high at the back forming a barrier to block the noise of the trains. The blocks have lifts and ladders. The top two floors of the tallest building are occupied by duplex, with a continuous input on the 7th floor gallery that runs the entire length of the structure.
The properties of the ground floor flats in this block are those accessed from open stairs serving two apartments per floor.
Low Block – B-C
The other two buildings with 4 floors each, run parallel to each other, one of them, the B faces the highest block, the other, B1 and C, look at a 4ha park. These buildings contain lower duplex with shared access, terraces, gardens and smaller windows on a flat facade.
Distribution blocks
The desire to control the sound and vibration of the trains was a major in the organization of the three parallel rows of houses consideration. A row of terraced apartments are aligned along the tracks, is the largest of the stepped building, 8 floors, designed to block the arrival of the train noise to the inside of the complex. A low block, 4 storeys, runs along the other side of the pedestrian walkway that share both public buildings designed to open towards the south. The third row of construction, also with 4 floors and parallel to another of equal height, runs along the southern edge is parallel to another public road, between this row and the first buildings constructed Ainsworth Estate and defines a public park between the second and third row of houses.
Common Areas
- Community Center
Alexandra Road has a community center in a school, a reception center, maintenance facilities, installation of heating and gardens work. The center reaches out to the access onto London Road to the east, and the park opens. A distinctive image are the three tall metal chimneys that rise above the boiler room. The Community Center is developed on one level of irregular shape with horizontal strips of windows and rooftop terrace.
Way south of Rowley are play areas and a public park. Play areas are irregular in shape and are distributed on several levels connected by walls, walkways, ramps, bridges and concrete benches, with a sequence of small spaces with attached seats. The three blocks are connected by low concrete walls that enclose seating areas, some paved with granite.
- Parking
One of the parking under the building is located along the roads, has one of the entrances to the beginning of Rowley Way with a curious spiral staircase. Also available in public areas.
Emptying the place is completely covered with concrete poured in situ. Alexandra Road received much criticism during and after construction because of the huge cost overruns caused by complicated construction, unforeseen foundation problems and inflation.
Another parking area is outdoors, in the community center.
Interior
In total 520 apartments with 1, 2, 3 or 4 rooms and duplex were provided. The duplex homes have bedrooms on the ground floor and the living room at the top. Each room has a balcony outside with fully glazed sliding doors and sliding panels that allow subdividing the interior spaces.
Structure and materials
This construction with high-density low-rise housing is made on rubber pads to minimize noise from busy train tracks that run beside her.
The houses are paired access on Ainsworth Way, the floor slab covered terrace providing retracts with floor to ceiling and heavy reinforced concrete balustrade with glass panels underneath. The windows are thick wood. The ground floor is slightly elevated above the garages. The apartment blocks are built with unpainted white concrete, with the passage of time acquired the gray coloring, poured in situ and found that in contrast to the woodwork stained black wood. The look “raw” exterior walls with time was softened by lush vegetation and intended at the time of the project.
A mix of materials in building entrances, brick and metal is appreciated. Each of these elements has also been used in other areas of the building, the brick walls of the buildings and metal railings entries and some protective screens. Inside the apartments have large windows in all rooms, sliding partitions to separate rooms, ceramic floors and central heating hidden inside the walls.
Failures in construction
With the use by its inhabitants households began presenting some problems, such as the heating to be hidden in the walls, no individual controls, caused departments are too heated, neighbors complained of the “high temperature” because its use was not individual and the surfaces were trapped between two walls that emitted continuous heat. Until this difficult problem was fixed the Council agreed with residents paying half the bills resulting from heating.
Another problem arose with the material used for construction, concrete. The latter considerably more difficult to solve, due to the wet British weather. The problem worsened in 1980 due to lack of maintenance.
Video





























































































































